29 Aralık 2025 Pazartesi

Selçuk Bey

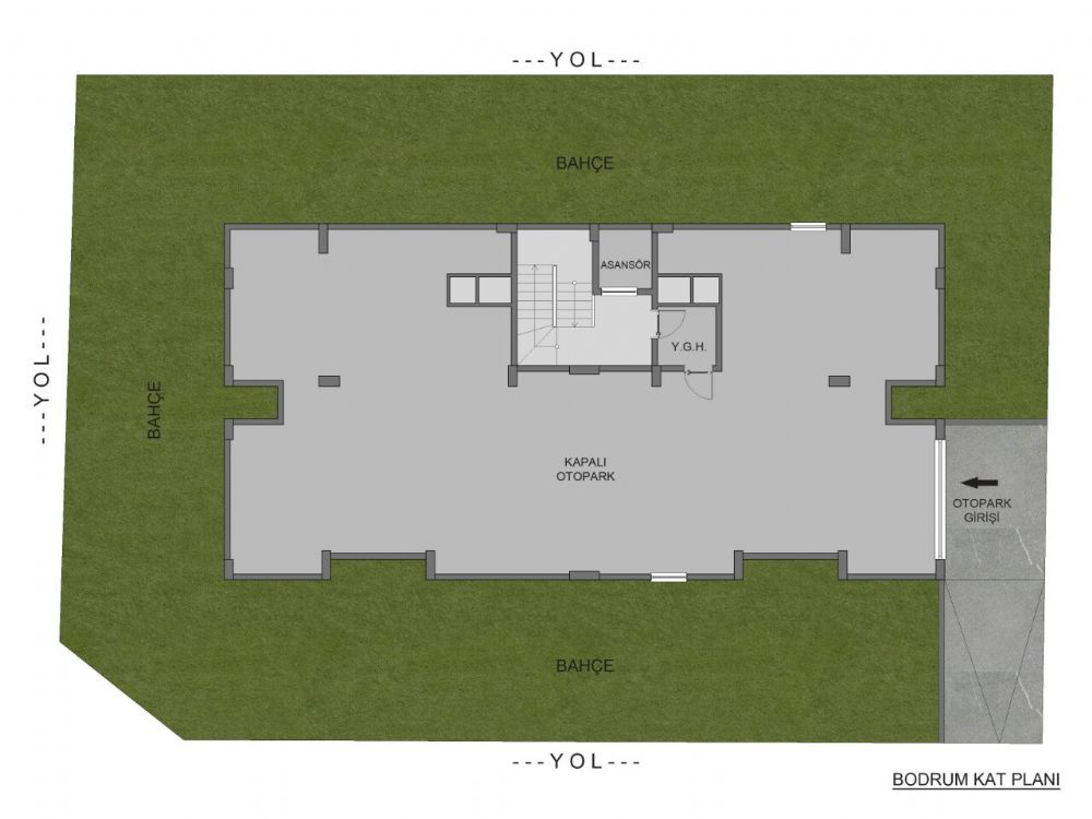
Selçuk Bey projemiz 2016 yılında başladı, 2017 yılında satışa çıkarıldı

Bodrum+4 katlı, 8 daireden oluşan projemiz bodrumda kapalı otoparkı, kamera sistemleri, yüksek malzeme ve işçilik kalitesi ve yalıtım özelliğiyle öne çıkıyor.

» diğer içerikler

Resim İçerik Başlık Kategori Detay
Özdil Özdil Tamamlanan Projelerimiz Detay
Pearls - Restaurant Pearls - Restaurant Tamamlanan Projelerimiz Detay
Kayalık - Plaza Kayalık - Plaza Tamamlanan Projelerimiz Detay
İstiklal Apartmanı İstiklal Apartmanı Tamamlanan Projelerimiz Detay
DNK-01 DNK-01 Tamamlanan Projelerimiz Detay
Babadağ Gıda - Fabrika Babadağ Gıda - Fabrika Tamamlanan Projelerimiz Detay
Selçuk Bey Selçuk Bey Tamamlanan Projelerimiz Detay
Gümüşçay Apartmanı Projesi Gümüşçay Apartmanı Projesi Tamamlanan Projelerimiz Detay
Değirmenci Villa Projesi Değirmenci Villa Projesi Tamamlanan Projelerimiz Detay
Akgündüz Villa Projesi Akgündüz Villa Projesi Tamamlanan Projelerimiz Detay
Sırakapılar Mahallesi, Doktorlar Caddesi, 739 Sokak, No9/8, 20010 Merkezefendi/Denizli
SEKTÖRELAJANS